







München – Neuharlaching
Neubau-Villenhälfte mit eindrucksvoller Fassadengestaltung: Klassische Architektur für zeitlosen Wohnkomfort – Haus Nr. 2
Grundstück (ca.)
305 m²
Wohnfläche (ca.)
210 m²
Zimmer
5,5
Badezimmer
2
Objektbeschreibung
Willkommen in Ihrer neuen Traumimmobilie – einer exquisiten Villenhälfte, die klassischen Stil mit modernem Wohnkomfort vereint. Diese beeindruckende Immobilie besticht nicht nur durch ihre elegante Fassadengestaltung, sondern auch durch eine durchdachte Raumaufteilung, die für höchste Lebensqualität sorgt.
Raumaufteilung und Ausstattung:
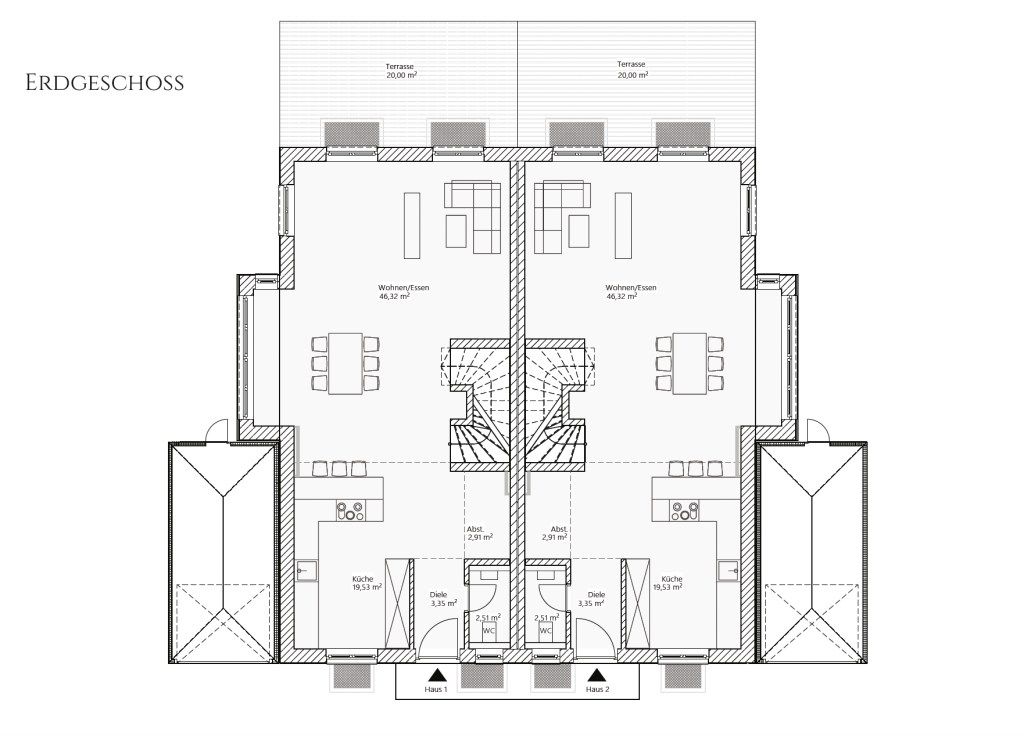
Auf großzügigen 5,5 Zimmern verteilt sich eine wohlüberlegte Wohnfläche, die sowohl Platz für Familien als auch für individuelle Entfaltung bietet. Das Highlight der Unterkunft ist der offene Küchenbereich, der nahtlos in das große Wohnzimmer übergeht und eine harmonische Atmosphäre schafft – ideal für gesellige Abende und entspanntes Wohnen.
Dachgeschoss:
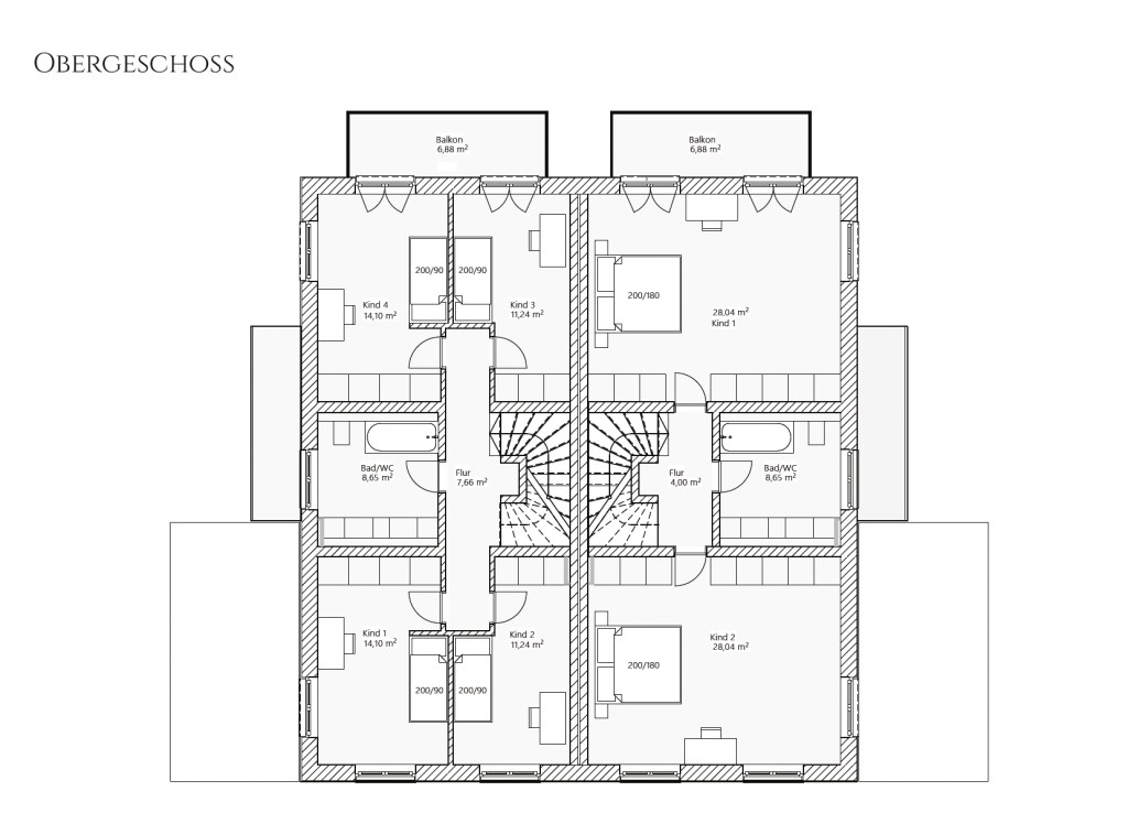
Das Dachgeschoss bietet einen privaten Bereich für die Eltern, der mit einem komfortablen Badezimmer, einer Ankleide und einem großzügigen Schlafzimmer ausgestattet ist. Hier haben Sie die Wahl zwischen einem großen Dachflächenfenster, das für viel Tageslicht sorgt, oder einer geschlossenen Variante für eine zusätzliche Ankleidefläche – ganz nach Ihren Bedürfnissen.
Architektur und Design:
Die klassische Architektur verleiht diesem Zuhause zeitlose Eleganz, während die eindrucksvolle Fassadengestaltung das äußere Erscheinungsbild unterstreicht. Eine stilvolle Designerholztreppe führt ins Obergeschoss und setzt einen besonderen Akzent im Wohnraum.
Hohe Lebensqualität:
Die hochwertige Ausstattung rundet das Gesamtbild ab und garantiert Ihnen höchsten Komfort. Von edlen Bodenbelägen bis hin zu modernen Sanitäreinrichtungen – hier wurde an jedes Detail gedacht.
Diese Villenhälfte in Neuharlaching bietet Ihnen ein exklusives Wohngefühl in einer der attraktivsten Lagen Münchens.
Details
Wohnfläche (ca.)
Grundstücksfläche (ca.)
Nutzfläche (ca.)
Zimmer
Schlafzimmer
Badezimmer
Balkon/ Terrasse
Gäste – WC
Keller
Art des Stellplatzes
Anzahl der Garagen
Objekt
Objektart
Adresse
Bezugsfrei ab
Kosten
Kaufpreis
Preis je Einzelgarage
Käuferprovision
Ausstattung
umfangreiche Stuckarbeiten
Smart Home
Fußbodenheizung
Echtholzparkettboden
Hochleistungswärmepumpe
gehobene Sanitärausstattung
Lagebeschreibung
Willkommen in Neuharlaching, einem idyllischen Stadtteil im Südosten Münchens, bekannt für seine hohe Lebensqualität und naturnahe Umgebung. Hier vereinen sich urbaner Komfort und ländliche Ruhe, ideal für Familien und Naturliebhaber.
Verkehrsanbindung:
Die U-Bahn-Station „Neuharlaching“ garantiert eine schnelle Erreichbarkeit der Innenstadt in etwa 20 Minuten. Auch Buslinien und die nahe A95 sorgen für optimale Anbindungen.
Einkaufsmöglichkeiten:
Zahlreiche Supermärkte, örtliche Geschäfte und ein Wochenmarkt bieten alles für den täglichen Bedarf und frische regionale Produkte.
Bildung und Betreuung:
Familien finden eine gute Auswahl an Kindergärten und Schulen in der Umgebung, die eine sichere und kinderfreundliche Bildung gewährleisten.
Freizeit und Erholung:
Die Nähe zur Isar und der malerische Isarpark laden zu Aktivitäten in der Natur ein, während Sportvereine für aktive Freizeitgestaltung sorgen.
Kultur und Gastronomie:
Die Gastronomieszene reicht von traditionellen Wirtshäusern bis hin zu internationalen Restaurants, ergänzt durch kulturelle Veranstaltungen, die das Gemeinschaftsleben bereichern.
Fazit:
Neuharlaching bietet die perfekte Mischung aus Münchener Lebensqualität und ruhiger Nachbarschaft. Überzeugen Sie sich selbst von dieser charmanten Lage!
JETZT ANFRAGEN!
Schreiben Sie eine Mail an kontakt@skmaison.de oder rufen Sie an unter
+49 (0) 177/ 45 77 928
Wir freuen uns auf Sie !




